Project name: A Villa on the Black Sea Coast: A Home That Curates a Family’s Journeys
Interior design: Oksana Trunova
Furniture and Project Furnishings: Dantone Home
Location: Gelendzhik, Russia
Photo: Mikhail Chekalov
Stylist: Daria Vedritskayte
Area: 1299.7 sq. m
Year: 2025
Project description from design firms Dantone Home
Nestled on the picturesque shores of Gelendzhik Bay—a site once inhabited by an ancient Greek colony—this newly completed villa is a spatial archive for a family of avid travelers. Conceived by the international furniture brand Dantone Home in collaboration with designer Oksana Trunova, the project masterfully blends contemporary architecture with its dramatic coastal landscape, while the interiors serve as a living gallery of global artifacts and memories.
The clients—a developer and hotelier, his wife, and their son—are avid travelers who fell in love with the city of Gelendzhik upon their arrival. From each country they visited, they brought back not only cherished memories but also ideas for their future home. They aimed to fill it with memorabilia, a collection of books, and decorative elements. Their goal was to have a timeless interior that would remain relevant for years to come, allowing for the seamless incorporation of new discoveries without compromising its stylistic integrity.
Designer Oksana Trunova says, “This project is designed for those who value the beauty of simplicity, the soothing sound of the surf, and the luxury of a natural environment. The house is perfect for both year-round living and vacations — a space where they can recharge, find inspiration, and fully immerse themselves in the stunning beauty of the Black Sea coast.”
Architecture: A Dialogue with History and the Sea
The architecture, conceived in a contemporary Mediterranean style, features clean lines, flat roof terraces, and geometric volumes made of light plaster and natural stone. Panoramic windows fuse the interior with the landscape, framing the sea view as a dynamic, ever-changing work of art. Sliding glass doors blur the boundaries between indoor and outdoor spaces, seamlessly connecting the living areas to the terraces and pool.
Interior: Greek Style as the Unifying Thread
The designers honored the history of the space by using a modern interpretation of Greek style as their foundation. This approach effortlessly blended elements from various styles, cultures, and regions within a single space.
The interior color palette features light, natural tones such as cream, sand, and blue-gray. These colors are complemented by natural textures, including plaster, light oak parquet flooring, and porcelain tiles that mimic concrete and marble. Additionally, linen and cotton textiles add to the overall aesthetic. Against this neutral yet textured backdrop, the family’s collection of objects from around the world fits seamlessly into the harmonious space.
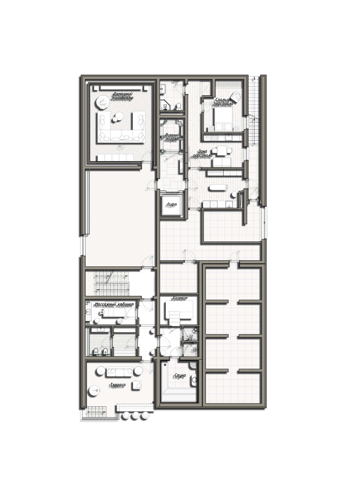
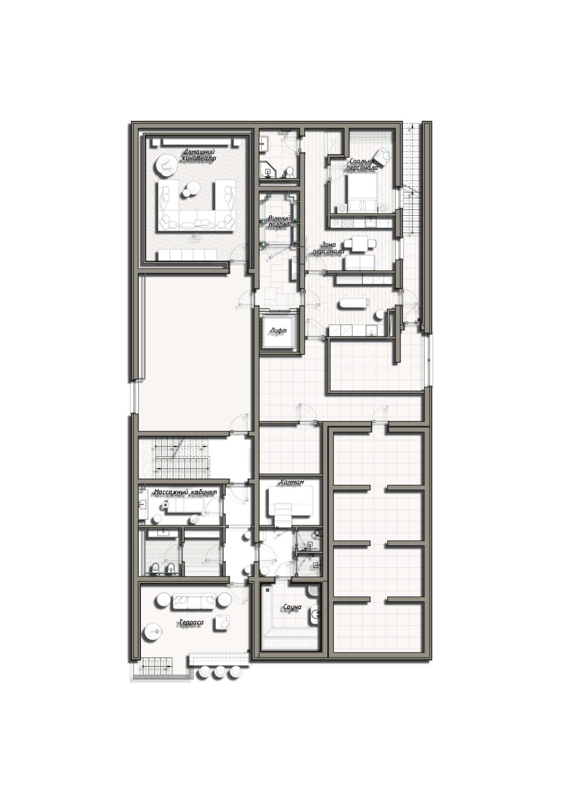
Layout Solutions
The villa’s spaces are distributed across four levels with distinct functions.
The entry level contains the public areas: a living room, kitchen, and dining room.
One level below is dedicated to leisure, housing a home theater, gym, spa, and a wine cellar.
The two upper stories accommodate the private quarters: a master suite, a bedroom for the son, and guest rooms.
YOU MIGHT ALSO LIKE
Living Room
The living room serves as the focal point of the enfilade layout; through a series of arched openings, the spaces flow seamlessly into one another, creating depth and layering.
The focal point of the living room is a spacious modular Narvik sofa, designed for comfortable family relaxation. One of its sections is positioned toward the fireplace, creating a cohesive and versatile space that allows for movie watching, conversation, or simply enjoying the warmth of the fire.
The architectural motif of the arch is echoed in a softly curved niche that incorporates an open bookshelf, providing a practical and unique reading solution. A large painting, created by a family friend to complement the color scheme of the interior, serves as a focal point. Additionally, a full-height woodpile adds a rustic touch to the space. The living room has direct access to the terrace and pool.
Kitchen
Located behind the woodshed is the kitchen, designed as a professional workspace for the chef-trained owner and as the social hub of the entire home. The kitchen cabinetry was custom-made by Dantone Kitchen, and the centerpiece of the space is a large island with a granite countertop, serving as a perfect stage for culinary activities.
The layout prioritizes functional storage with four full-size cabinets for appliances and utensils, while a dedicated coffee nook streamlines morning routines.
The visual structure features ribbed copper facades that match the ceiling’s tone, while a graphic black backsplash adds depth. Linear handles, arranged in a clear dotted pattern, provide rhythm to the facades.
Dining Room
The dining room centers around a solid elm dining table, accompanied by Contempo chairs designed by Swiss designer David Girelli.
Custom-made consoles became the architectural centerpiece, skillfully serving three functions: acting as a railing for the staircase leading to the wine cellar, cinema, spa, and gym; providing storage; and visually separating spaces.
A colonial-style Peru chest of drawers features a relief façade inspired by Inca terraces, aligning with the theme of travel – the central motif of the villa’s interiors.
SPA Zone
The spa is a private sanctuary designed for relaxation, featuring a hammam, sauna, and massage room. The design plays with contrasting textures: smooth stone paired with soft lighting and mosaics in the hammam, while warm wooden finishes add to the overall ambiance. A cohesive warm color scheme and intimate lighting create an ideal environment for complete rejuvenation.
Study
The master study is designed in a classic style, reminiscent of English club interiors. The focal point is a large, deep emerald bookshelf created by Dantone Home, which holds the family’s library collected from their travels. Retro vinyl equipment is also included, adding a unique backdrop for both work and relaxation. Additionally, colonial artifacts enhance the feel of a personal archive. The emerald hue is reflected in the color accents found in the pool area.
Bedrooms
Each bedroom boasts a distinct character, reflecting various corners of the world—from American classics to colonial designs. One room includes a Cancun chest of drawers with a relief front that resembles sand dunes.
A spacious room designed for the clients’ son features panoramic windows that fill the space with natural light, providing an ideal setting for creative pursuits. The room is defined by striking black-and-white accents, including a high headboard with a wave-like pattern, stylish sconces, and framed photographs on the walls. A floor lamp and rhythmic shelving further enhance the visual depth of the room. These graphic elements are softened by gray textiles and warm wood accents, which contribute to a balanced and restrained color palette.
Outdoor Spaces
The climate and location were the driving forces behind the project’s key concept, leading to the design of a multi-level system of terraces and outdoor recreation areas. On the first level, just behind the living room, there is an outdoor living space and a lounge area next to the pool. Higher up, on the private terrace of the third floor, you’ll find an alfresco recreation area.
Outdoor furniture is chosen for its emphasis on natural forms and materials. The outdoor living room features the Tulum collection, with flowing silhouettes and a solid wood floor lamp.
Encircled by a wooden deck, the infinity pool’s vibrant turquoise waters evoke the allure of a Maldivian lagoon. The furniture surrounding the pool—comprising armchairs, a table, and sun loungers from the Taormina collection by French designer Laura Grésar—mirrors the colors of the water and the landscape, while complementing the light-colored façade of the house. This creates a harmonious blend of architecture and nature.
Smart Home & Engineering Solutions
A comprehensive smart home system centrally manages climate control, multi-level lighting, curtains, multimedia, and security, allowing for customized settings for any occasion—from entertaining to vacation mode. Throughout the house, lighting (including subtle night lights) is set to a warm 2700K spectrum, creating a universally relaxing atmosphere.
Sustainable performance is ensured by a suite of integrated solutions: heated floors, heat recovery ventilation, and solar thermal collectors for water heating. Separate, dedicated systems handle pool water purification and heating, automated landscape irrigation, and air circulation.

