Project name: Centre Sanaaq
Architecture & Design: Pelletier de Fontenay + Architecture49 + Atelier Zébulon Perron
Mechanichal engineering: CIMA+
Client: Ville de Montréal
Location: Montréal, Québec, Canada
Photo: James Brittain
Year: 2025
Project description from design firms Pelletier de Fontenay + Architecture49 + Atelier Zébulon Perron
A Distinctive Cultural Hub Where Architecture, Community, and Collective Creation Converge
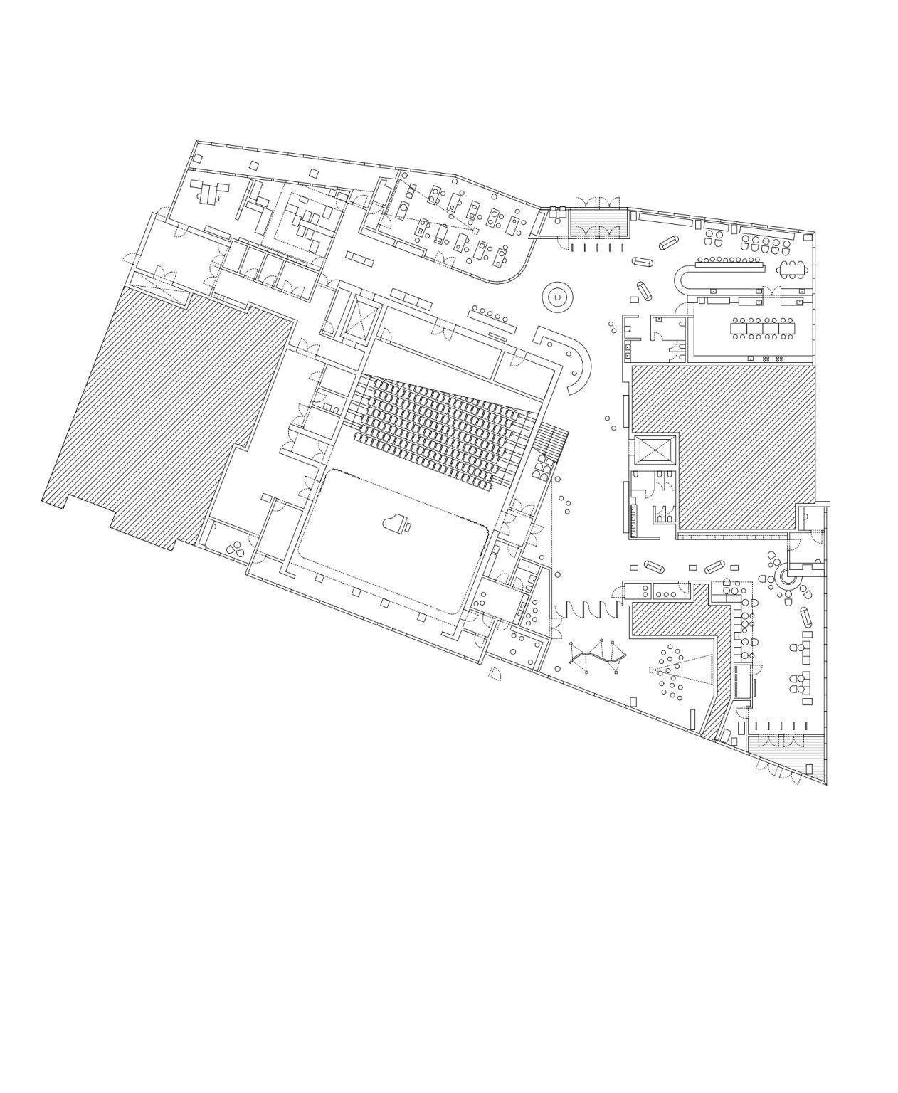
The newly opened Centre SANAAQ brings a transformative presence to downtown Montreal’s cultural landscape. Envisioned through a close collaboration between Pelletier de Fontenay, Architecture49, and Atelier Zébulon Perron, the project redefines the relationship between architecture, interior design, and scenography, merging disciplines to create a dynamic, inclusive public space in the Peter-McGill district.
Occupying the podium of a new residential development on the former site of the Montreal Children’s Hospital, the Centre leverages its inherited structure, at once generous and complex to its fullest potential. The interiors unfold like an urban landscape, conceived as an extension of the surrounding city. Fluid circulation, transparency, and accessibility shape every gesture, reinforcing the Centre’s civic vocation as an open and participatory fabric. More than a traditional community facility, Centre SANAAQ is a living space, and a setting for learning, exchange, and experimentation.
Inspired by its Inuktitut name, derived from sana (“to create”, “to work”, or “to sculpt”), it embodies the spirit of collective making that defines its programming. Through community-driven initiatives, the Centre acts as a platform where culture is not only presented but actively produced. Accessible yet ambitious, mainstream yet exploratory, the project positions itself as a laboratory of public innovation. Blurring the boundaries between high-tech and low-tech, formal and informal, the framework invites its users to actively shape and inhabit their own collective environment.
Acoustics, a central design concern, are controlled and refined through the use of various materials such as coffered wood ceilings and walls, suspended fabrics, and exposed sprayed cellulose. These treatments ensure exceptional performance within large, open volumes, creating a comfortably resonant environment that accommodates everything from vibrant performances to moments of quiet reflection. Vegetation, subtly integrated into the architecture, softens the atmosphere and reinforces a sense of well-being.
Ultimately, Centre SANAAQ operates less as an object than as a system, an adaptable framework that grows through use. By privileging generosity, inclusiveness, and spatial freedom over formal constraint, it outlines a progressive vision for cultural architecture today: open, permeable, and deeply attuned to the human experience.
About Pelletier de Fontenay
Founded in 2010, Pelletier de Fontenay has made its mark with award-winning contemporary public projects resulting from competitions. Distinguished by its commitment to creativity, innovation, and excellence, the firm’s approach is contextual and informed, based on research and methodical analysis. By identifying and articulating issues, Pelletier de Fontenay seeks accuracy and relevance, discerning opportunities and developing targeted and effective solutions. Its inclusive approach allows for overall transparency in its work and enhances interactions between client and professional, project and user, architecture and context.
About Architecture49
Architecture49 is a nationwide firm renowned for its collaborative and human approach to architecture. With offices across Canada, its team brings together passionate specialists who apply their expertise to a wide range of projects, from institutions and cultural spaces, to corporate and community spaces. Guided by a sustainable and forward-looking vision, A49 is known for its ability to create functional, inspiring environments where aesthetics intrinsically engage with use and identity.
About Atelier Zébulon Perron
Founded in 2008, Atelier Zébulon Perron is a design firm specialising in commercial development. The firm is renowned for its expertise in the hospitality industry, and for its design of bars and restaurants within that sector that have been woven into the fabric of Montreal’s vibrant scene. Atelier Zébulon Perron approaches each project as a unique design opportunity, creating layouts that work in harmony with their users while focusing on listening to its clients’ needs, combining aesthetics, sustainability, and commercial success.
Source: V2com-newswire.com




